LEBEN in BURKARDROTH
Maps
Kontakt
Wetter
Google Earth
Panorama
Menü
Maps
Kontakt
Wetter
Google Earth
Panorama
X
Pl-1-Family XXL
Normal
360°
Previous
Next
Loading...
2-3
4-1
top
2D_EG
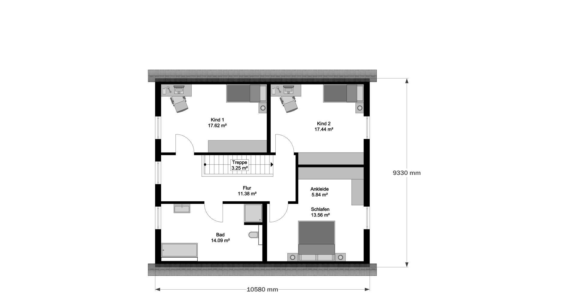
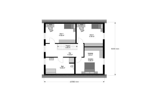
2D_OG